- Woonoppervlakte
- Circa 76 m²
- Perceeloppervlakte
- Circa 107 m²
- Bouwjaar
- Gebouwd in 1925
- Aantal kamers
- 3 kamers (2 slaapkamers)
CENTRAAL GELEGEN HOEKWONING MET UITBOUW!
Deze nette en modern afgewerkte HOEKWONING met uitbouw en riante multifunctionele berging, gelegen op een zeer centrale locatie en op loopafstand van het historische centrum van Gouda, het NS-(intercity)station en alle noodzakelijke voorzieningen staat te koop!
De woning beschikt over een sfeervolle living met uitbouw, open keukenruimte v.v. een gloednieuwe keuken, 2 slaapkamers, een moderne badkamer, een ruime en multifunctionele berging, een zonnige achtertuin op het westen, airco op beide verdiepingen en 6 zonnepanelen!
Bouwjaar ca. 1925. Woonoppervlakte ca. 74m2. Inhoud ca. 300m3. Eigen grond 107m2.
Graaf van Bloisstraat:
De naam van de straat verwijst naar de historische “Graven van Blois”. Vroeger (in de middeleeuwen) hadden de Graven van Blois gebiedsrechten over Gouda en omgeving.
Er is bekend dat één van de Graven, nadat zijn familie invloed kreeg, begon met de bouw van een kasteel in Gouda rond 1361. Daarmee vormt de straatnaam, en daarmee indirect iedere woning aan deze straat, een link met het middeleeuwse verleden van Gouda: een subtiele herinnering aan de tijd dat Gouda deel uitmaakte van het graafschap.
Begane grond:
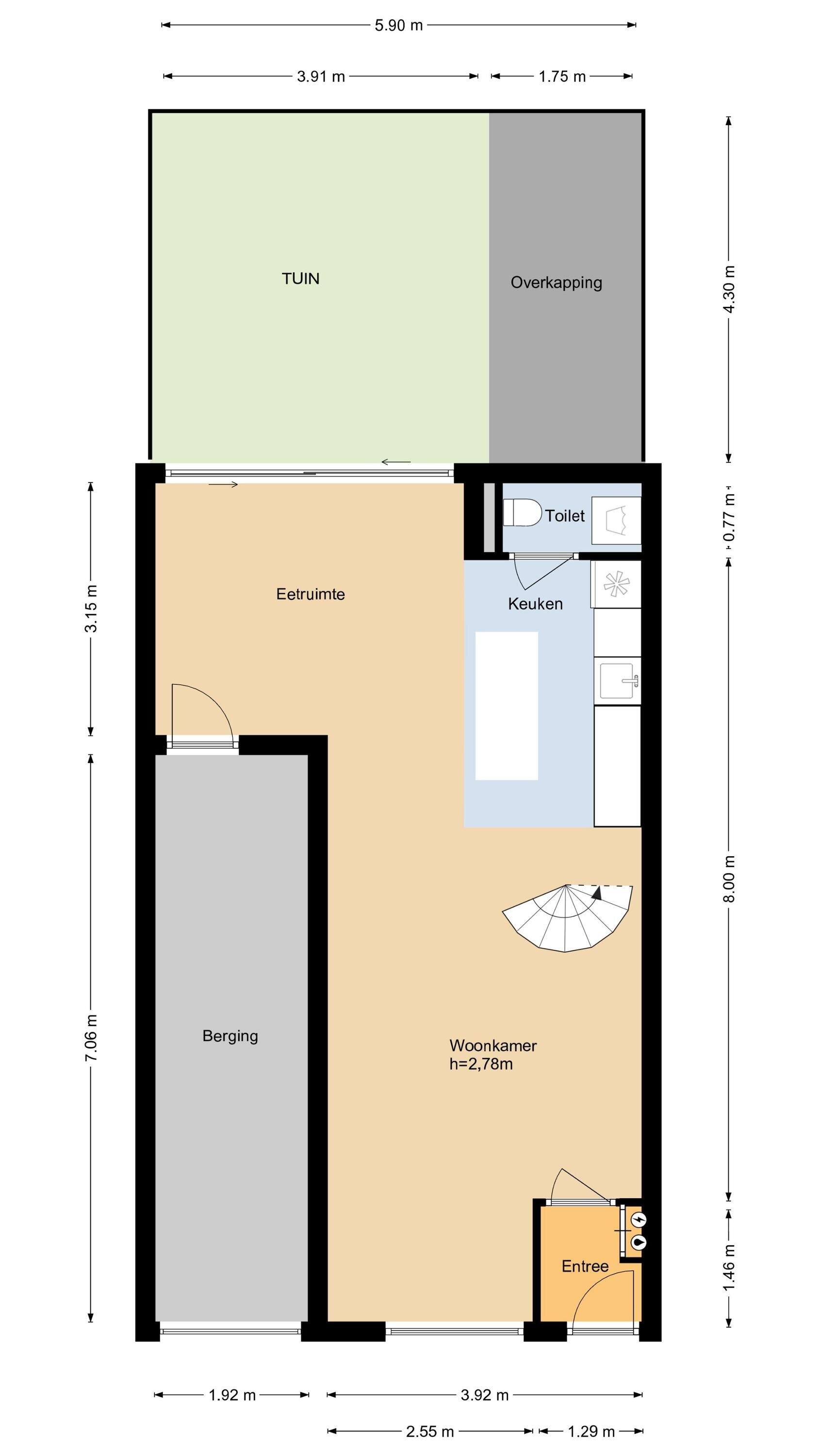
Via de entree en hal met meterkast (8 groepen en aardlekschakelaar) komt u de sfeervolle en lichtvriendelijke living van ca. 40m² binnen. De living is v.v. inbouwspots, trapopgang naar de 1e verdieping en openslaande deuren naar de zonnige achtertuin. Via de living komt u in de open keukenruimte welke zeer recent is vernieuwd (2025). De L-vormige keukenopstelling met kookeiland van ca. 8 m2 is v.v. een inductie kookplaat, afzuigkap, vaatwasser, koel/vriescombinatie en inbouwspots.
Via de keukenruimte heeft u toegang tot de de volledig betegelde toiletruimte welke is v.v. wandcloset, inbouwspots en de aansluiting voor de wasmachine en droger.
Ook heeft u middels de woonkamer via de openslaande deuren toegang tot de zonnige tuin, gelegen op het westen.
De gehele begane grond is voorzien van laminaat vloerafwerking en lichte wand- en plafondafwerking. Ook beschikt de woonkamer over een airco die ook verwarmd.
Eerste verdieping:
Middels de trap in de woonkamer betreedt de eerste verdieping. Via de overloop, v.v. inbouwspots en authentieke houten balken, zijn alle vertrekken te bereiken. Allereerst de slaapkamer (1) van ca. 7m² aan de achterzijde van de woning v.v. laminaatvloer, een extra bergzolder en airco welke ook verwarmd. Ook vindt u hier de in HR-combiketel (2021). Slaapkamer (2) aan de achterzijde van ca. 10,3m² aan de voorzijde v.v. laminaatvloer, stuukwerk/behang, authentieke houten balken en airco, welke ook verwarmd.
De overloop en slaapkamers zijn voorzien van laminaat vloerafwerking en lichte wand- en plafondafwerking.
De moderne badkamer van ca. 4,3 m² voorzien van inloopdouche met regendouche en handdouche, dubbele wastafel met spiegels, hangend toilet, handdoek radiator en inbouwspots.
Berging:
Een groot pluspunt van deze woning is de enorme multifunctionele berging aan de zijkant van de woning van maar liefst 7(!) meter diep! Deze ruimte biedt legio mogelijkheden zoals een hobby- of werkruimte!
Buiten:
De woning beschikt over een zonnige en verzorgde tuin met riante overkapping, gelegen op het westen waar u heerlijk van de zon kunt genieten!
Afmetingen:
- Woonkamer ca. 10,23x5,9/3,92m.
- Keuken ca. 4,15x1,75m.
- Slaapkamer (1) ca. 3,75/2,19x2.40m.
- Slaapkamer (2) ca. 3,88x2,66m.
- Badkamer ca. 2,19x1,97m.
- Berging ca. 7,06x1,92m.
- Tuin ca. 5,90x4,30m.
- Overkapping 4,30x1,75m.
Algemeen:
- recent voorzien van een gloednieuwe keuken;
- zeer riante berging;
- op ca. 5 minuten wandelafstand van de historische markt;
- op ca. 6 minuten wandelafstand van het centraal station;
- op ca. 5 minuten autoafstand van uitvalswegen A-12 en A-20;
- het betreft hier parkeren met een parkeervergunning (verkrijgbaar via Parkeerservice Gouda);
- 6 zonnepanelen;
- energielabel D;
- Overdracht in overleg/zo snel mogelijk.
Disclaimer:
Deze woning is ingemeten volgens de NEN2580 en voorzien van een meetcertificaat. De meetinstructie biedt een uniforme manier van meten, maar sluit kleine verschillen in meetuitkomsten niet uit. Alle informatie is bedoeld als uitnodiging tot het doen van een bod of het starten van onderhandelingen. Aan deze woninginformatie kunnen geen rechten worden ontleend.
Overdracht
- Vraagprijs
- € 365.000 k.k.
- Status
- Beschikbaar
- Aanvaarding
- In overleg
Bouw
- Object type
- Eengezinswoning, hoekwoning
- Soort bouw
- Bestaande bouw
- Bouwjaar
- 1925
- Soort dak
- Zadeldak bedekt met pannen
Oppervlakte en inhoud
- Woonoppervlakte
- 76 m²
- Perceeloppervlakte
- 107 m²
- Inhoud
- 310 m³
- Overige inpandige ruimte
- 13 m²
Indeling
- Aantal kamers
- 3 kamers (2 slaapkamers)
- Aantal badkamers
- 1 badkamer
- Aantal woonlagen
- 2 woonlagen
- Voorzieningen
- Airconditioning, zonnepanelen
Energie
- Energielabel
- D
- Energielabel registratie
- 27-11-2025
- Isolatie
- Dakisolatie, dubbel glas, gedeeltelijk dubbel glas
- Verwarming
- Cv-ketel
- Warm water
- Cv-ketel
- Cv ketel
- Combiketel gas gestookt (eigendom)
Buitenruimte
- Ligging
- In woonwijk
- Tuin
- Achtertuin
- Afmetingen achtertuin
- 25 m² (4.3 meter diep en 5.9 meter breed)
- ligging tuin
- Gelegen op het westen en en bereikbaar via achterom
Bergruimte
- Schuur / berging
- Aangebouwd steen
- Voorzieningen
- Voorzien van elektra
Garage
- Soort garage
- Geen garage
Parkeergelegenheid
- Soort parkeergelegenheid
- Betaald parkeren
Energieverbruik in Gouda
Energielabel deze woning
Energielabel D
Publicatie energielabel: 27-11-2025
Stroomverbruik per jaar
(Gemiddelde hoekwoning in Gouda)
Gasverbruik per jaar
(Gemiddelde hoekwoning in Gouda)
* Cijfers zijn afkomstig van het CBS en bedoeld als indicatie en kunnen verschillen voor deze woning
Indicatie hypotheeklasten
Eigen inleg:
Spaargeld / overwaarde
Rente:
Laagste 10-jaars rente
Laagste 10-jaars rente
2,78% - Centraal Beheer Groen... - NHG
3,04% - Centraal Beheer Groen... - 80%
Laagste 20-jaars rente
3,29% - Centraal Beheer Groen... - NHG
3,52% - Centraal Beheer Groen... - 80%
Laagste 30-jaars rente
3,41% - Centraal Beheer Groen... - NHG
3,7% - Argenta Groen Hypotheek... - 80%
Hypotheek:
Bruto maandlasten: € 0 p/m
Netto maandlasten: € 0 p/m
Hoe berekenen we dit?
Het rentepercentage is gebaseerd op de laagste 10 jaars vaste rente voor één hypotheekdeel. De vermelde rente (2.78% met NHG) is gecontroleerd op 07-03-2026. Deze berekening is gebaseerd op een annuïteitenhypotheek die volledig wordt afgelost, waarbij de maandlasten gedurende de gehele looptijd gelijk blijven. De werkelijke rente en netto maandlasten kunnen variëren, afhankelijk van uw persoonlijke situatie en de hypotheekverstrekker. Raadpleeg een financieel adviseur voor een nauwkeurige berekening en advies. Aan deze berekening kunnen geen rechten worden ontleend; het dient enkel als indicatie.
Documentatie
Kadastrale kaart
Leefomgeving
Plattegronden PDF
WOZ waarderapport
BAG uittreksel
Brochure
Bezoek onze website
Bezichtiging
Bod uitbrengen
Waardebepaling
Zoekopdracht
Alles downloaden
Zonnegrenzen bekijken
Inwoners in Gouda
Cijfers voor postcodegebied 2805
- Totaal aantal inwoners
- 10785 inwoners
- Mannen
- 49%
- Vrouwen
- 51%
Inwoners in Gouda
Cijfers voor postcodegebied 2805
- tot 15 jaar
- 18%
- 15 tot 25 jaar
- 11%
- 25 tot 35 jaar
- 26%
- 45 tot 65 jaar
- 27%
- 65 en ouder
- 18%
Huishoudens in Gouda
Cijfers voor postcodegebied 2805
- Eenpersoons zonder kinderen
- 38%
- Meerpersoons zonder kinderen
- 27%
- Huishoudens zonder kinderen
- 65%
Huishoudens in Gouda
Cijfers voor postcodegebied 2805
- Huishoudens met één kind
- 8%
- Huishoudens met meerdere kinderen
- 27%
- Huishoudens met kinderen
- 35%
Woningen in Gouda
Cijfers voor postcodegebied 2805
- Woningen voor 1945
- 20%
- Woningen tussen 1945 en 1965
- 33%
- Woningen tussen 1965 en 1975
- 6%
- Woningen tussen 1975 en 1985
- 5%
- Woningen tussen 1985 en 1995
- 17%
Woningen in Gouda
Cijfers voor postcodegebied 2805
- Woningen tussen 1995 en 2005
- 12%
- Woningen tussen 2005 en 2015
- 2%
- Woningen na 2015
- 5%
- Huurwoningen
- 40%
- Koopwoningen
- 60%
Overige in Gouda
Cijfers voor postcodegebied 2805
- Gemiddelde WOZ waarde
- € 230.000,-
- Personen onder de 65 met uitkering
- 7%
Overige in Gouda
Cijfers voor postcodegebied 2805
- Adressen per km²
- 2848
- Stedelijkheid (schaal 1 op 5)
- 100%
Korte feiten over Gouda
Gouda is een stad en gemeente in het oosten van de provincie Zuid-Holland in Nederland met 75.763 inwoners (1 januari 2024, bron: CBS) op een grondgebied van 16,92 km². De stad is gelegen in Midden-Holland en in het stedelijk gebied de Randstad, op ruwweg gelijke afstand van Rotterdam, Utrecht en Den Haag. Gouda heeft een regiofunctie binnen het Groene Hart, waar het qua inwoners de grootste stad en de op een na grootste gemeente is (na Alphen aan den Rijn). Het is naar inwonertal gemeten de 48e gemeente van Nederland en de 12e gemeente van Zuid-Holland.
Van Rhijn Makelaars
Indien u vragen heeft of u wilt een bezichtiging inplannen, dan kunt u gebruik maken van het formulier hiernaast. Er zal daarna op korte termijn contact met u worden opgenomen.
van Limburg Stirumstraat 2
2805 BD, Gouda
0182 – 748 739 info@vanrhijnmakelaars.nl www.vanrhijnmakelaars.nlContact opnemen
Over Van Rhijn Makelaars
Van Rhijn Makelaars, voorheen bekend als Uw Verkoopmakelaars en UwAankoopmakelaars.nl, is uw partner bij het zoeken naar een nieuwe woning of het verkopen van uw huidige woning. Bent u toe aan een grotere woning of wilt u gewoon in een andere omgeving wonen? Dan bent u bij ons aan het juiste adres.
Bij Van Rhijn Makelaars kunt u terecht voor de aankoop, verkoop en verhuur van uw woning in Reeuwijk, Gouda, Bodegraven, Boskoop, Haastrecht, Waddinxveen, Moordrecht en Woerden. Wij bieden alle diensten die u van een makelaar verwacht, maar dan tegen een vast tarief dat vooraf is bepaald. Dit geldt voor zowel de verkoop als de aankoop van uw woning.
Wij zetten moderne tools in, maken duidelijke afspraken en zijn transparant in onze werkwijze. Zo kunt u met een gerust hart uw zoektocht naar een nieuwe woning starten of uw huidige woning verkopen.
Nieuwste reviews
-
Spoorpad 158
Een makelaar die zeer kundig te werk gaatTop presentatie van ons huisEn bij vragen via whatsapp dan wel telefoon binnen uiterlijk een uur re...
-
Prins Hendrikstraat 119
Prima contact, laagdrempelig te benaderen en luistert echt naar de klant! Foto’s waren wat donker, maar dat werd snel opgelost door nieuwe f...
-
Prunuslaan 2
Wij zijn heel blij met v Rhijn makelaardij als aankoop en verkoopmakelaar. Fijn en spontaan in het contact, snel resultaat, deskundig en gew...